House plan and terrace plan 2d drawing autocad file
Description
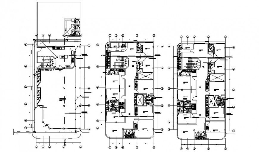
House plan and terrace plan 2d drawing autocad file that shows a work plan of housing units with dimensions and hidden line details. Terrace plan details and sanitary bathroom area details with other details of building units are also shown in the drawing.

Uploaded by:
Eiz
Luna

