Drawing of house design 2d details AutoCAD file
Description
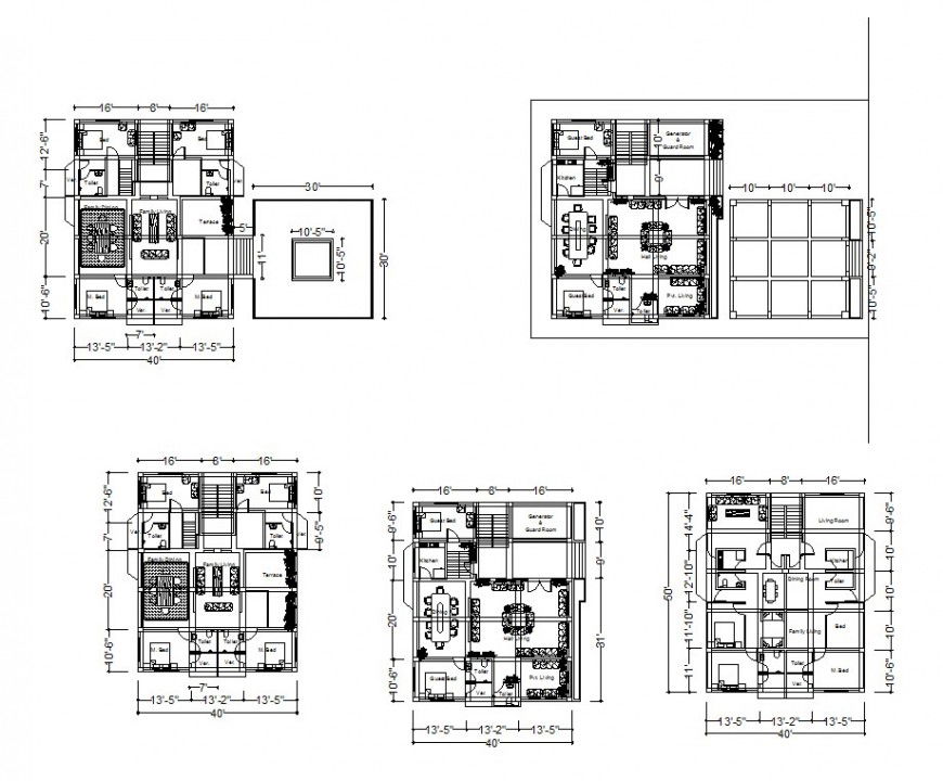
Drawing of house design 2d details AutoCAD file which includes a typical floor plan with details of the drawing room, dining room, kitchen, dining, bedroom, toilets, balcony, hall, family living room, master bed details with furniture details, dimension etc.
Uploaded by:
Eiz
Luna

