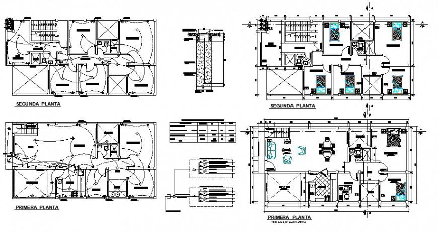
House plan and electrical installation layout drawing in autocad
Description
House plan and electrical installation layout drawing in autocad that shows work plan of the house with floor level details and furniture blocks detail in the house with electrical installation plan. Section line and furniture blocks details are also shown in the drawing.

Uploaded by:
Eiz
Luna

