Drawing of house details 2d view layout plan autocad software file
Description
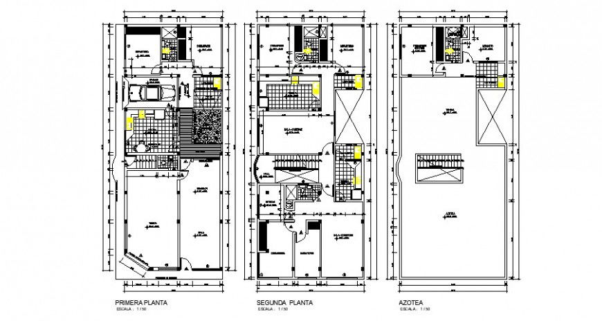
Drawing of house details 2d view layout plan autocad software file with furniture blocks details and parking space details and dimension hidden line details. Terrace plan details with staircase details are also shown in the drawing.
Uploaded by:
Eiz
Luna

