Residential House Two-Level Floor Plan in DWG Drawing Format
Description
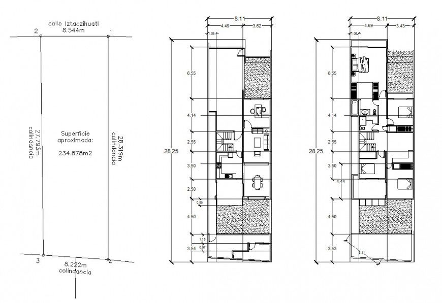
Residential house two-level floor plan distribution cad drawing details that includes a detailed view of ground, first etc with car parking floor, garden area with main entry house door, drawing room and living room with family hall details kitchen and dining area, indoor staircases and laundry area and balcony, details and bedroom or master bedroom, toilets and bathroom with indoor doors, furniture details and much more of house project.

Uploaded by:
Eiz
Luna

