Hydraulic plan of washing area of building in autocad file
Description
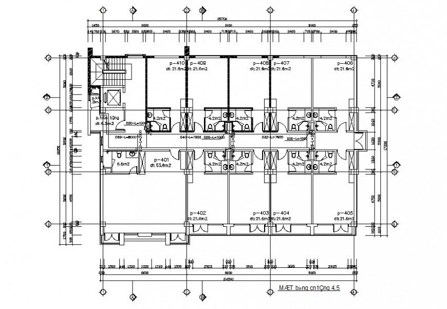
Hydraulic plan of washing area of building in autocad file design with wall and wall support area and design and wash basin area with important dimension and hydraulic line with its control in single water line area in plan.
File Type:
DWG
File Size:
1.6 MB
Category::
Dwg Cad Blocks
Sub Category::
Autocad Plumbing Fixture Blocks
type:
Gold
Uploaded by:
Eiz
Luna

