Basement planning design drawing of residential house design
Description
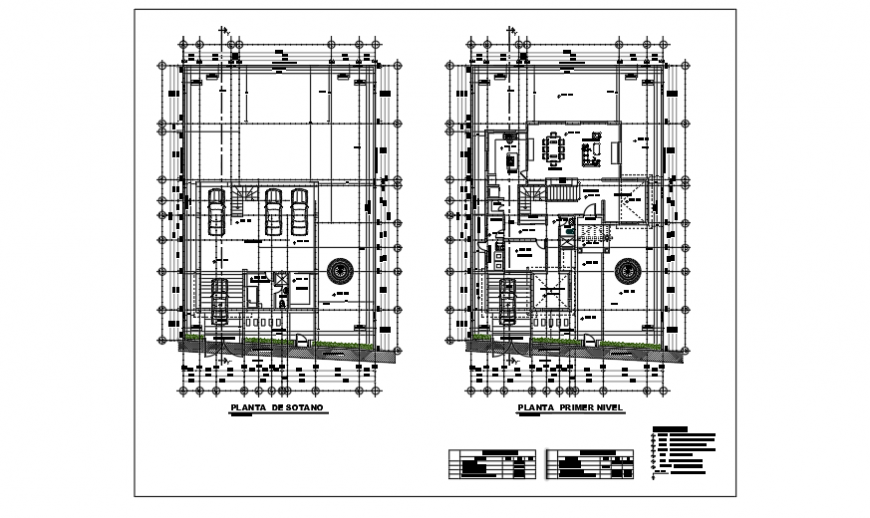
Here the Basement planning design drawing of residential house design with basement floor parking area design drawing with working layout design drawing and also center line layout design drawing and ground floor plan design with furniture layout design drawing and working layout design drawing and center line layout design drawing in this auto cad file.
Uploaded by:
Eiz
Luna

