Architectural Section plan design of single family home design
Description
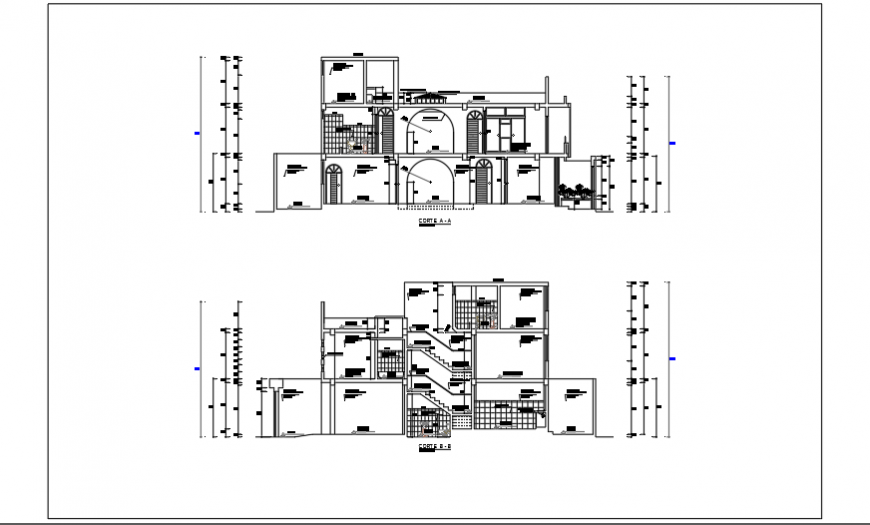
Here the Architectural Section plan design of single family home design with main front inner side section and stair section detail with working dimension mentioned and floor height mentioned in this auto cad file.
Uploaded by:
Eiz
Luna

