Working plan and section of residential house 2d view dwg file
Description
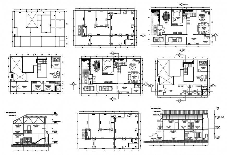
Working plan and section of residential house 2d view dwg file, plan view detail, wall and flooring detail, door and window detail, section line detail, furniture units detail, parking space detail, staircase detail, different sections detail, drawing room area detail, kitchen and dining area detail, bedroom area detail, foundation plan detail, RCC structure, etc.

Uploaded by:
Eiz
Luna

