Concrete slab construction layout plan and plan cad drawing details dwg file
Description
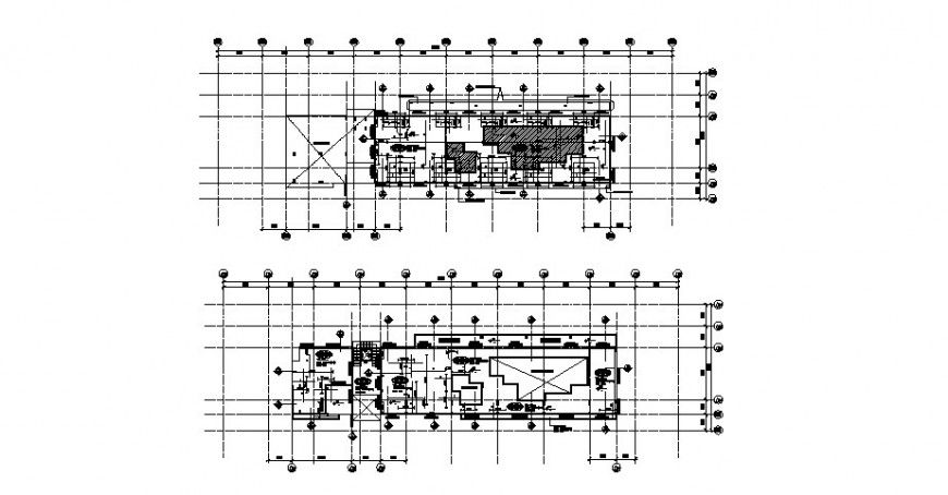
Concrete slab construction layout plan and plan cad drawing details that includes a detailed view of main entry house door, drawing room, living room, family hall, kitchen, dining area, indoor staircases, laundry area, balcony, swimming pool, bedroom, master bedroom, toilets and bathroom, indoor doors, furniture details, swimming pool, gym, spa center, capacity of load of the ground at level of foundation of shoes, foundation floors, concrete-cement mixture, false floors, cement-concrete mixture (on compacted soil), Surpluses, cement-concrete mix medium stone, concrete structural and much more of club house details.

Uploaded by:
Eiz
Luna

