One family house distribution plan and electrical layout plan cad drawing details dwg file
Description
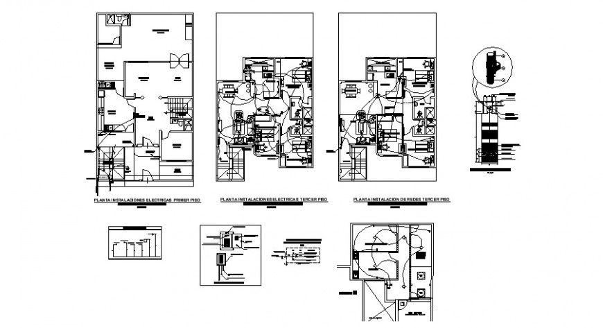
One family house distribution plan and electrical layout plan cad drawing details that includes a detailed view of power layout details and lighting layout details, computation and schedule of loads with general notes and specifications, panel board details, riser diagram, main entry house door, drawing room and living room, family hall details kitchen and dining area, indoor staircases and laundry area and balcony, details and bedroom or master bedroom, toilets and bathroom with indoor doors, furniture details and much more of house project.

Uploaded by:
Eiz
Luna

