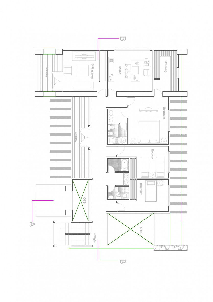
One family house ground floor plan layout cad drawing details dwg file
Description
One family house ground floor plan layout cad drawing details that includes a detailed view of garden and parking area with tree and plants view details, main entry house door, drawing room and living room, family hall details kitchen and dining area, indoor staircases and laundry area and balcony, details and bedroom or master bedroom, toilets and bathroom with indoor doors, furniture details and much more of house project.

Uploaded by:
Eiz
Luna

