Sanitary installation and structure details of single family house dwg file
Description
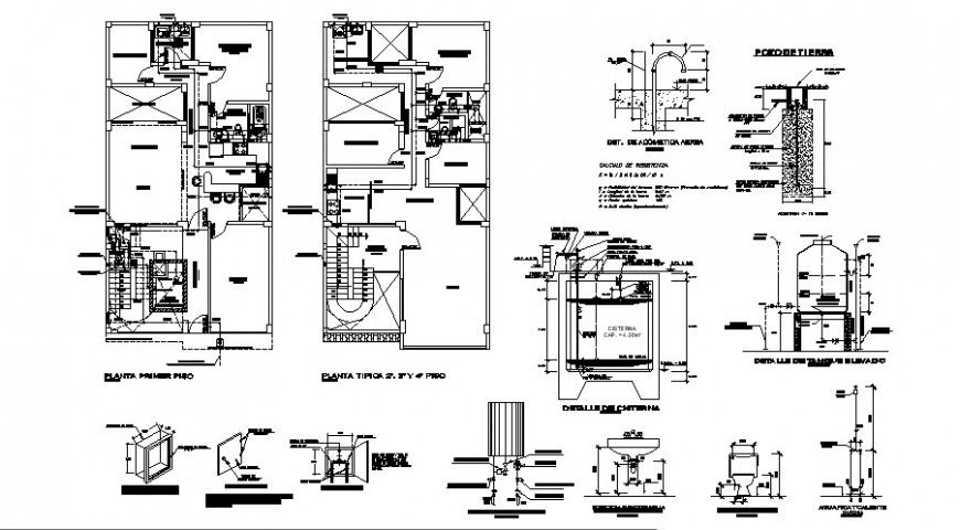
Sanitary installation and structure details of single family house that includes a detailed view of toilet plan details with toilet sectional details and passage, sanitary equipment installation details, doors and ventilation details, plumbing details and interior details with dimensions details, wall section details with main entry house door, drawing room and living room, family hall details kitchen and dining area, indoor staircases and laundry area and balcony, details and bedroom or master bedroom, toilets and bathroom with indoor doors, furniture details and much more of house project.

Uploaded by:
Eiz
Luna

