Single Family House CAD Architecture Project DWG File
Description
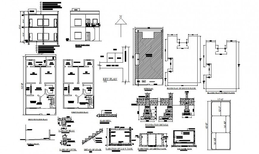
One family house detailed architecture project auto-cad drawing details that includes a detailed view of elevation and sectional details with constructive structure details with front sectional view with main stairways and stairways sectional view of terrace stairways with vest scenario, ceramic floor and horizontal section with main entry house door, drawing room and living room, family hall details kitchen and dining area, indoor staircases and laundry area and balcony, details and bedroom or master bedroom, toilets and bathroom with indoor doors, furniture details and much more of house project.

Uploaded by:
Eiz
Luna

