Sanitary installation working plan with elevation and section drawing dwg file
Description
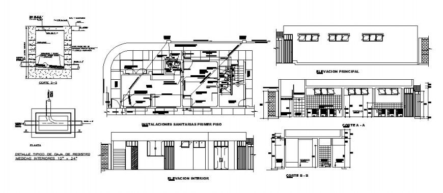
Sanitary installation working plan with elevation and section drawing dwg file which includes detail of water closet washbasin details and plan of the sanitary toilet. Different sides elevation and sections details area also given in this drawing.
File Type:
DWG
File Size:
682 KB
Category::
Dwg Cad Blocks
Sub Category::
Autocad Plumbing Fixture Blocks
type:
Gold

Uploaded by:
Eiz
Luna

