Two-story house plan and sanitary installation with water system cad drawing details dwg file
Description
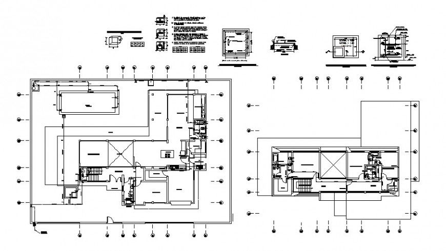
Two-story house plan and sanitary installation with water system cad drawing details that includes a detailed view of main entry house door, drawing room and living room with family hall details kitchen and dining area, indoor staircases and laundry area and balcony, details and bedroom or master bedroom with toilet sectional details and passage, sanitary equipment installation details, doors and ventilation details with plumbing details and interior details with dimensions details, wall section details and much more of house details.

Uploaded by:
Eiz
Luna

