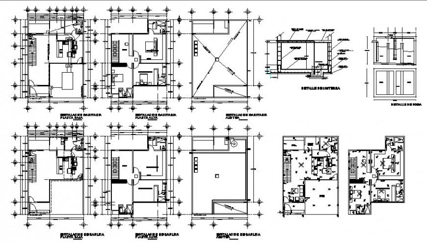
House layout plan, floor framing plan and auto-cad drawing details dwg file
Description
House layout plan, floor framing plan and auto-cad drawing details that includes a detailed view of main entry house door, drawing room and living room with family hall details kitchen and dining area, indoor staircases and laundry area and balcony, details and bedroom or master bedroom, toilets and bathroom with wood posts with Grider pre-engineering, steel pipe column and play joints, existing floor joints, knee wall details provided. Steel pipe column and much more of house details.

Uploaded by:
Eiz
Luna

