Mansion floor plan detail drawing in dwg file.
Description
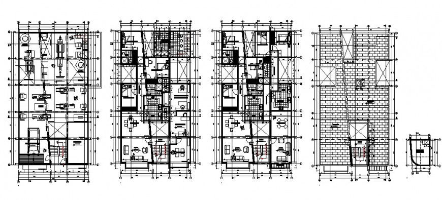
Mansion floor plan drawing in dwg file. detail drawing of floor plan of mansion, first-floor plan, second-floor plan and third-floor plan, terrace plan, furniture details with working drawing, section line drawing, centerline drawing, with dimensions.

Uploaded by:
Eiz
Luna

