Elevator Section and Installation CAD Drawing with Machine Room Layout
Description
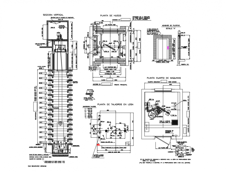
Elevator section and installation CAD drawing in DWG format. This AutoCAD file includes machine room layout, shaft dimensions, and component placement for accurate elevator design. Architects, engineers, and building planners can use this drawing for precise installation planning, structural coordination, and efficient vertical transportation system design, ensuring compliance with modern building and safety standards.
File Type:
DWG
File Size:
228 KB
Category::
Mechanical and Machinery
Sub Category::
Elevator Details
type:
Gold

Uploaded by:
Eiz
Luna

