Multi-story residential apartment floor plan and cover plan details dwg file
Description
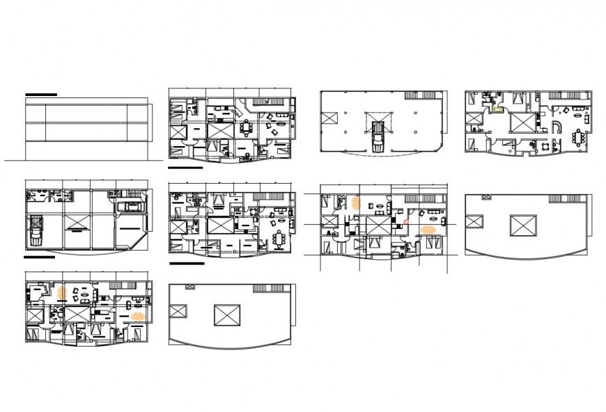
Multi-story residential apartment floor plan and cover plan details that includes a detailed view of main entry house door, drawing room, living room, family hall, kitchen, dining area, indoor staircases, laundry area, balcony, bedroom, master bedroom, toilets and bathroom, indoor doors, furniture details and much more of house floor plan details.
Uploaded by:
Eiz
Luna

