House construction working detail drawing in AutoCAD file.
Description
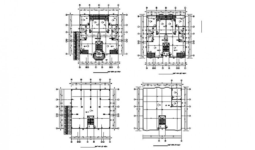
House construction working detail drawing in AutoCAD file. This file includes the detail drawing of the construction of the house with top view plan, construction plan, wall detail planning, section lines, dimensions, etc.

Uploaded by:
Eiz
Luna

