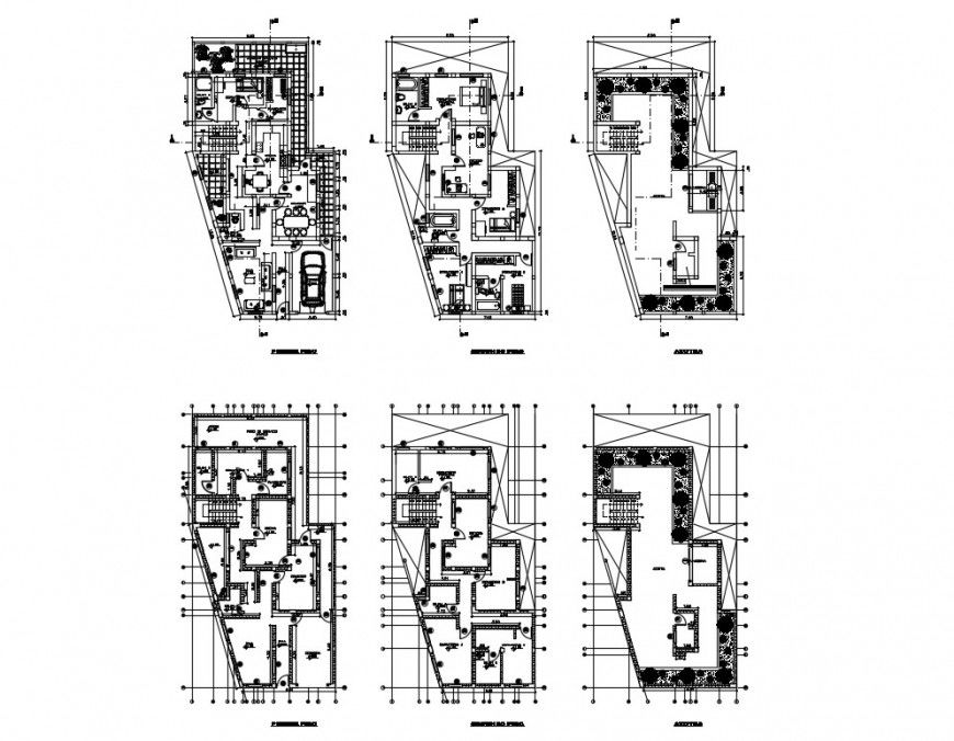
Ground, first floor and second floor plan details of house with framing plan dwg file
Description
Ground, first floor and second floor plan details of house with framing plan that includes a detailed view of ground floor, first floor, etc with main entry house door, drawing room, living room, family hall, kitchen, dining area, indoor staircases, laundry area, balcony, bedroom, master bedroom, toilets and bathroom, indoor doors, furniture details and much more of house project.

Uploaded by:
Eiz
Luna

