Architectural design drawing project of unifamiliary house design
Description
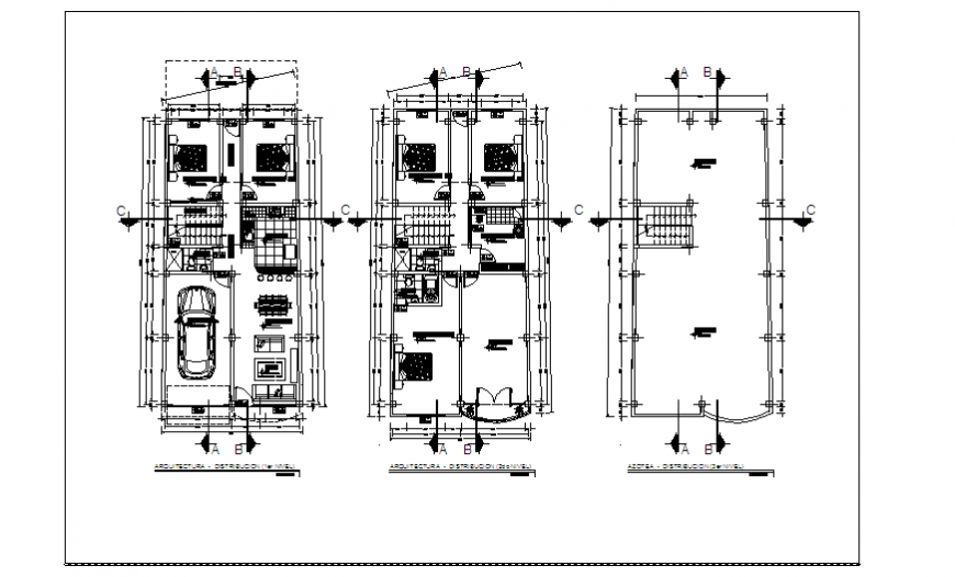
Here the Architectural design drawing project of unfamiliar house design with ground floor design drawing, first floor design drawing, terrace floor design drawing , center line design drawing, working layout design drawing etc design in this auto cad file.
Uploaded by:
Eiz
Luna

