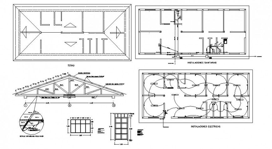
House roof construction, electrical layout and auto-cad details dwg file
Description
House roof construction, electrical layout and auto-cad details that includes a detailed view of previously linked support, multilayer insulation panel, rubber shock absorber element, galvanized profile for anchorage, acoustic sandwich. (see detail), dimensions details, memory of materials, concrete details, cuts and joints details, reinforcement details, water proofing, power layout details, lighting layout details, computation and schedule of loads, general notes and specifications, panel board details, riser diagram, convienence details and much more of house project.

Uploaded by:
Eiz
Luna

