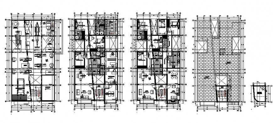
Mansion floor plan drawing in dwg file.
Description
Mansion floor plan drawing in dwg file. detail drawing of floor plan of mansion , first-floor plan , second-floor plan and third-floor plan, terrace plan, furniture details with working drawing, section line drawing, centre line drawing, with dimensions.

Uploaded by:
Eiz
Luna

