AutoCAD Elevation & Section Plan for Family Home Design
Description
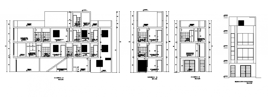
Here the Elevation & section plan of single family home project design drawing with stair section detail design drawing, two other types general section design drawing with all detailing design mentioned and front elevation view design drawing with all facilities design in this auto cad file.
Uploaded by:
Eiz
Luna

