A & B type Section layout of modern house project design drawing
Description
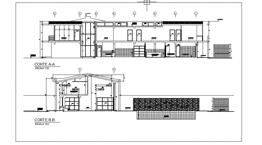
Here the A & B type Section layout of modern house project design drawing with two different types view section design drawing with all types detailing, dimesion mentioned, working layout mentioned and all used material detailing design drawing in this auto cad file.
Uploaded by:
Eiz
Luna

