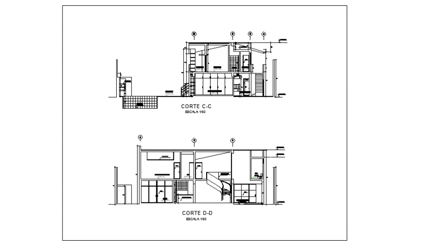
C & D type Section layout of modern house project design drawing

C & D type Section layout of modern house project design drawing
Profile

Uploaded by:

Eiz

Luna

Description

Here the C & D type Section layout of modern house project design drawing with two different types view section design drawing with all types detailing, dimension mentioned, working layout mentioned and all used material detailing design drawing in this auto cad file. 

Profile

Uploaded by:

Eiz

Luna

find Latest

Related Files

WhatsApp Chat