One family house two-level detailed architecture project dwg file
Description
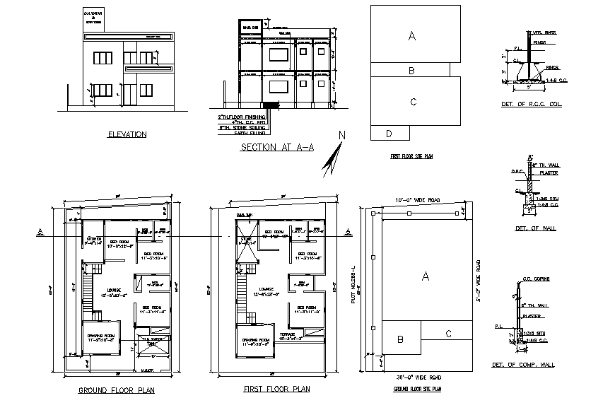
One family house two-level detailed architecture project that inludes a detailed view of main elevation details, main section details, first floor site plan, ground floor site plan, first floor and second floor layout plan, compound wall details, column details and much more of house project.

Uploaded by:
Eiz
Luna

