Cisterna 250m3 plan and section detail dwg file
Description
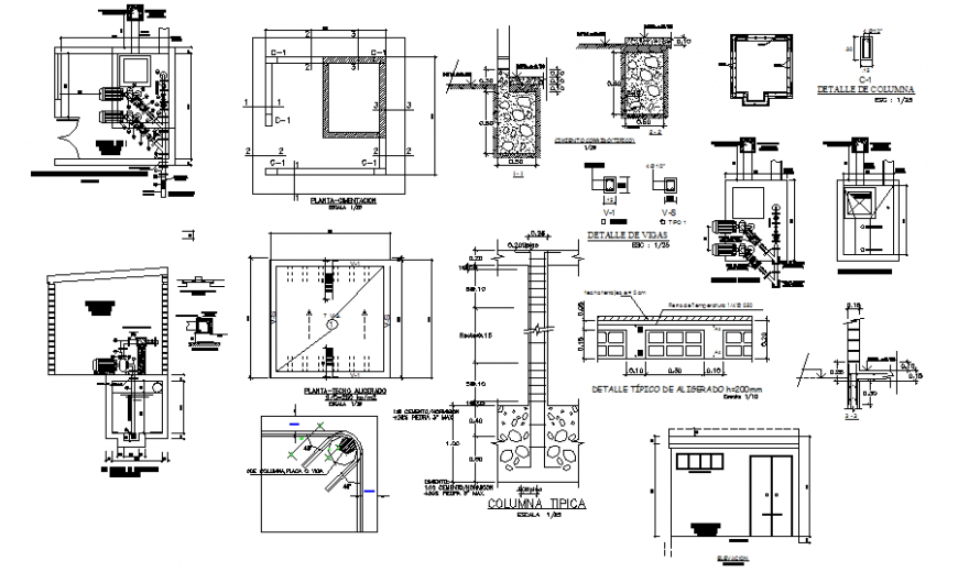
Cisterna 250m3 plan and section detail dwg file, dimension detail, naming detail, stone detail, reinforcement detail, bolt nut detail, hidden line detail, anchor detail, cut out detail, tank plan and section detail, not to scale detail, furniture detail in door and window detail, etc.
File Type:
DWG
File Size:
353 KB
Category::
Dwg Cad Blocks
Sub Category::
Autocad Plumbing Fixture Blocks
type:
Gold
Uploaded by:
Eiz
Luna

