Plaster paint house layout plan with framing plan details dwg file
Description
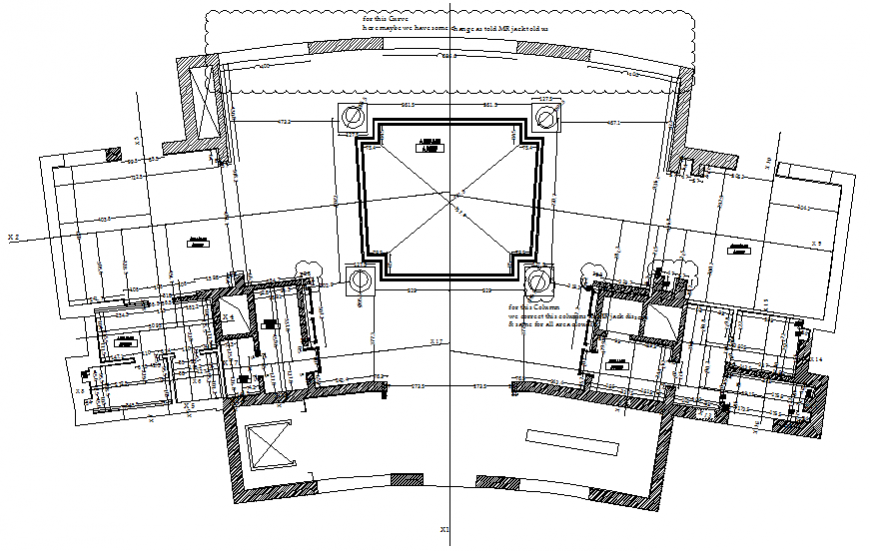
Plaster paint house layout plan with framing plan details that includes a detailed view of main entry house door, drawing room, living room, family hall, kitchen, dining area, indoor staircases, laundry area, balcony, bedroom, master bedroom, toilets and bathroom, indoor doors, furniture details, of wood posts, joints, decking, grider pre-engineering, steel pipe column, play joints, existing floor joints, knee wall, steel pipe column, beam schedule details, dimensions details and much more of house project.

Uploaded by:
Eiz
Luna

