Explore Commercial Building Plan Modern Design in DWG Format File
Description
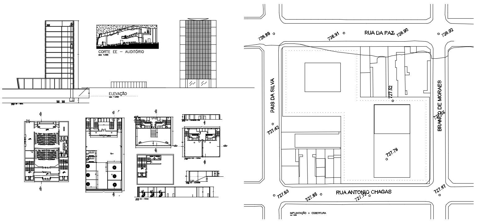
Download commercial building design plan elevation and section details that show building various sides of elevation details along with auditorium room details, office room and cabins details, sanitary restroom details, parking space, and other details.
Uploaded by:
Priyanka
Patel

