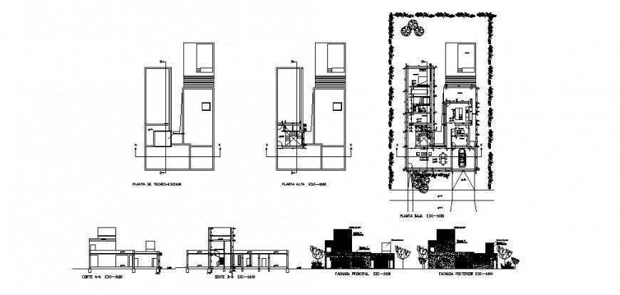
C shape house plan detail working drawing in dwg AutoCAD file.
Description
C shape house plan detail working drawing in dwg AutoCAD file. This file includes the detail top view plan with furniture plan, top view construction plan, exterior elevation, façade elevation, sectional elevation, dimensions, description.

Uploaded by:
Eiz
Luna

