Coffee Shop AutoCAD Plan and Elevation for Interior Designers
Description
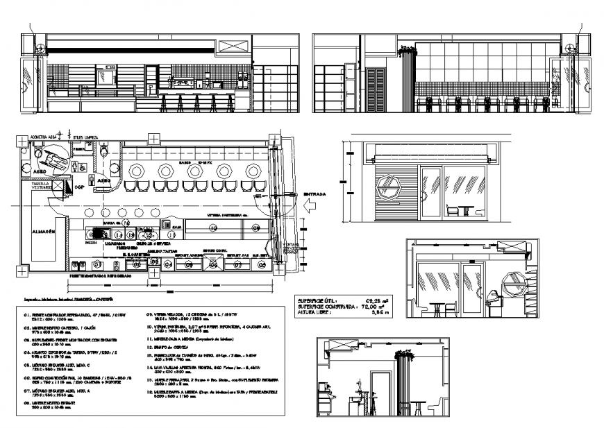
Coffee shop plan with elevation views, ideal for interior designers and architects. It includes precise furniture placement, seating arrangements, and structural details, making it perfect for professional space planning, café layout optimization, and interior design projects.
Uploaded by:
Eiz
Luna

