House layout plan with drawing for AutoCAD File
Description
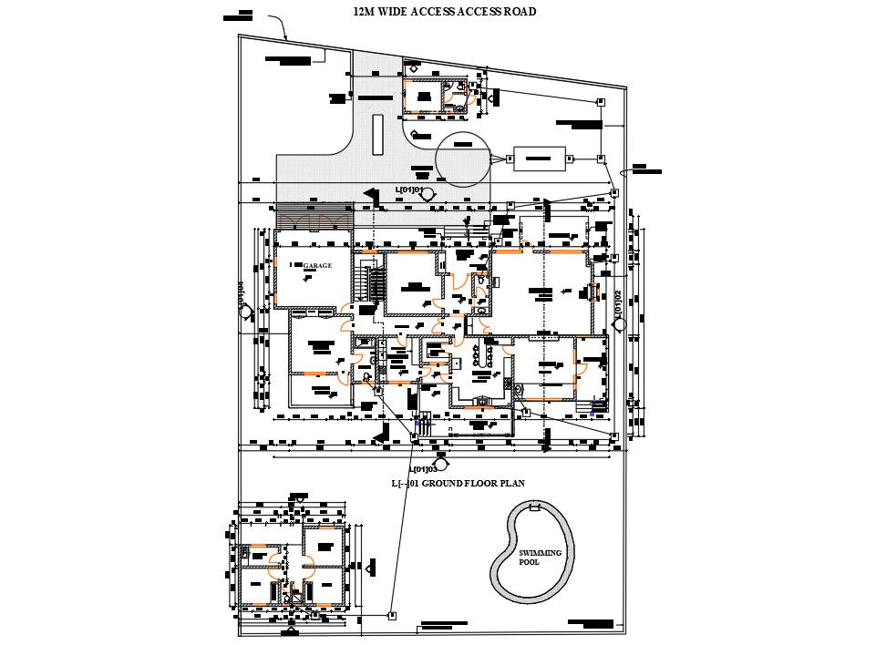
House layout plan with drawing for AutoCAD File.A house is a building that functions as a home, A house layout plan draw in autocad software, House layout plan download file,
Uploaded by:
helly
panchal

