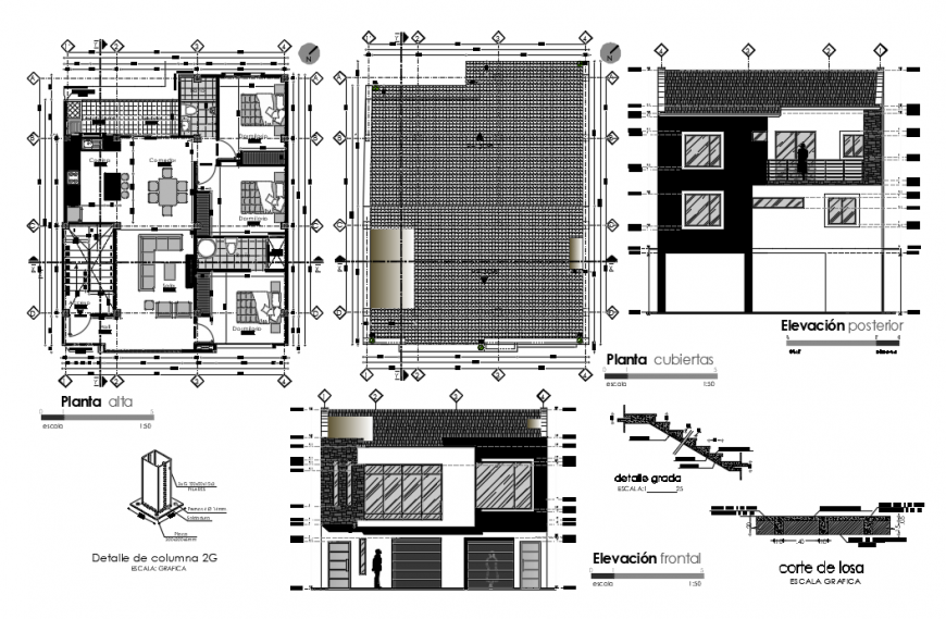
Complete detailing of bungalow with layout and elevation detail dwg file
Description
Complete detailing of bungalow with layout and elevation detail dwg file,interior project dwg file, here there is top view layout plan of a house,containing furniture details,sofa, dining, plantation and elevation of a bungalow, modern bungalow design, posh design, luxurious design etc
etc
Uploaded by:
Eiz
Luna

