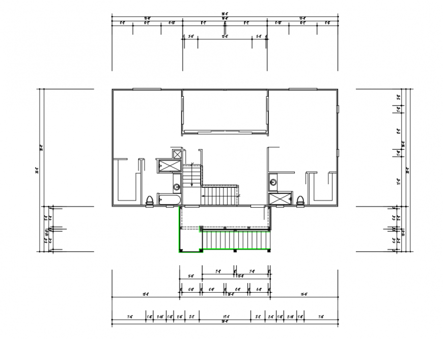
General layout plan details of house with sanitarians dwg file
Description
General layout plan details of house with sanitarians that includes a detailed view of main entry gate, doors, indoor staircases, indoor doors, area details, dimensions details, sanitary details with toilet sheet and basin and much more of house project.
Uploaded by:
Eiz
Luna

