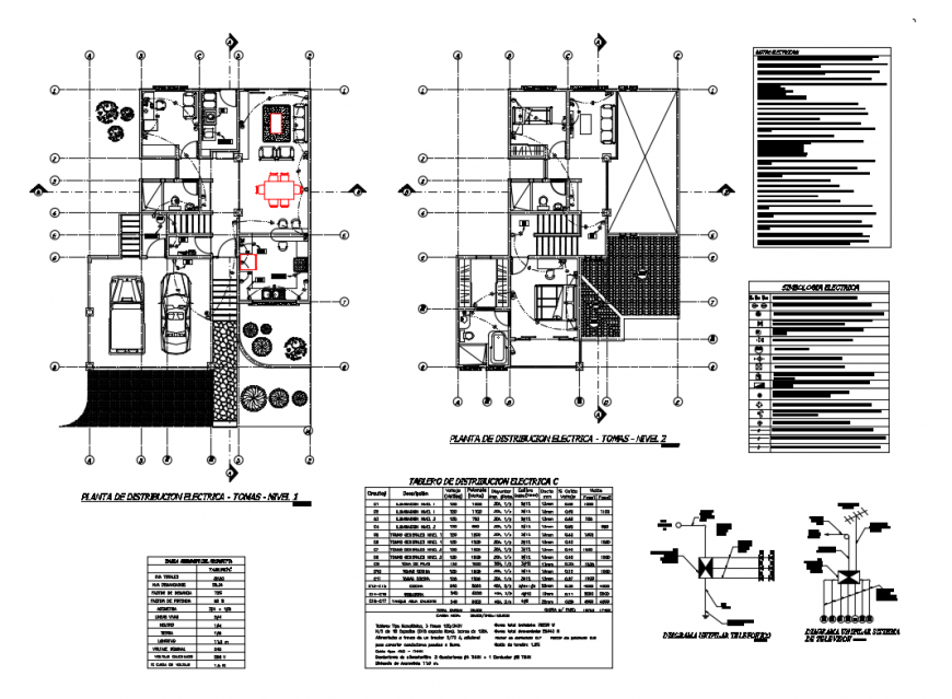
Colonial House Ground and First Floor Plan in DWG File
Description
Explore a CAD drawing in DWG format showcasing the ground and first floor layout of a colonial-style home, perfect for residential building and design planning.
Uploaded by:
Eiz
Luna

