Key plan and section housing plan detail dwg file
Description
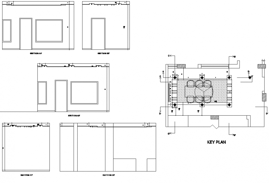
Key plan and section housing plan detail dwg file, section lien detail, hatching detail, furniture detail in table, chair, door and window detail, section A-A’ detail, section B-B’ detail, section C-C’ detail, section D-D’ detail, section E-E’ detail, grid lien detail, leveling detail, ceiling level detail, etc.
Uploaded by:
Eiz
Luna

