The first floor layout plan of the bungalow in dwg AutoCAD file.
Description
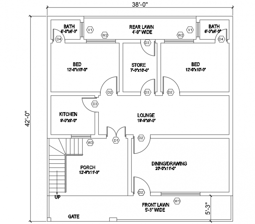
The first floor layout plan of the bungalow in dwg AutoCAD file. This drawing includes the wall layout plan of first floor of the bungalow with porch, dining, living, lounge area, kitchen area, two bedrooms, store, front lawn and rear lawn.
Uploaded by:
Eiz
Luna

