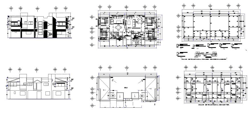
Plan view and elevation of residential structure detail 2d view autocad file
Description
Plan view and elevation of residential structure detail 2d view autocad file, plan view detail, hidden line detail, wall and flooring detail, door and window detail, floor level detail, numbering detail, dimension detail, sanitary toilet and bathroom detail, bedroom detail, dining room detail, living room detail, kitchen detail, numbering detail, staircase detail, riser and thread detail, front elevation detail, etc.
Uploaded by:
Eiz
Luna

