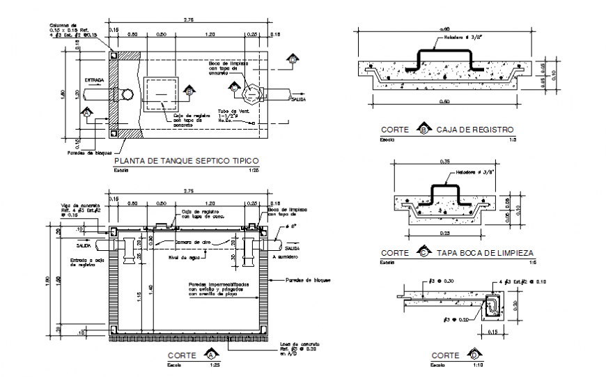
Septic tank section, plan and constructive structure details dwg file
Description
Septic tank section, plan and constructive structure details that includes a detailed view of all sided sectional details, plant details, Reinforced concrete parapet, Stuffed with tezontle, average thickness, Stuck with cement-sand mortar prop, Waterproofing based on prefabricated membrane, Wall concrete hollow block smooth finish, based on granitic acrylic resins, Hollow block wall heavy type of cm and much more of tank details.
Uploaded by:
Eiz
Luna

