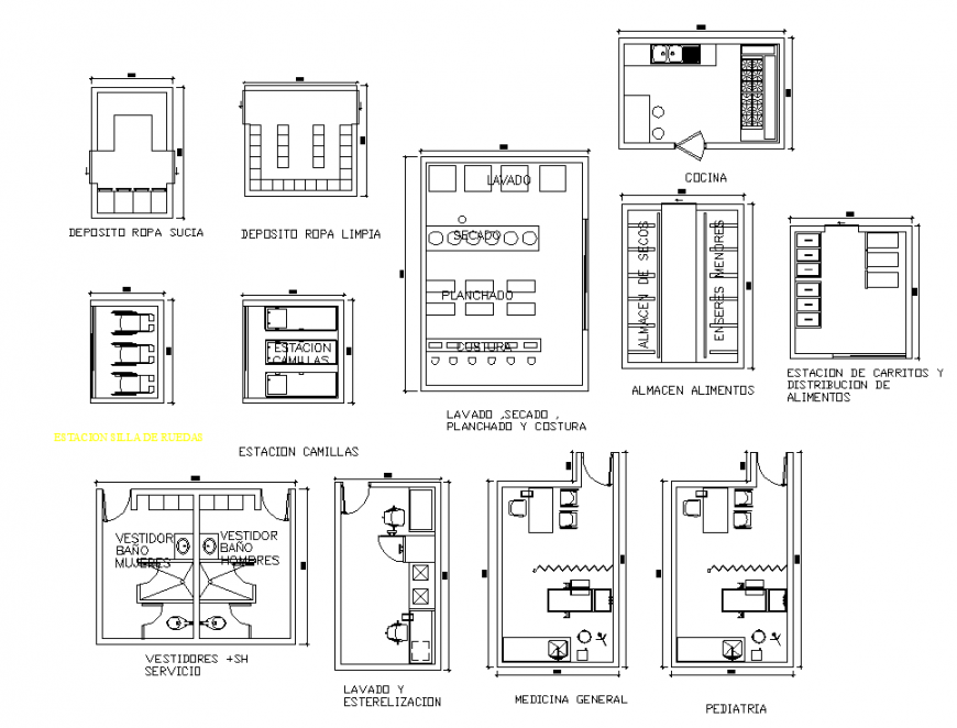
Pediatrics and store food planning autocad file
Description
Pediatrics and store food planning autocad file, dimension detail, naming detail, cut out detail, furniture detail in door, window, table, bed and chair detail, not to scale detail, brick wall detail, flooring detail, locker detail, grid line detail, etc.
Uploaded by:
Eiz
Luna

