Two story villa layout plan, electrical layout plan and constructive structure details dwg file
Description
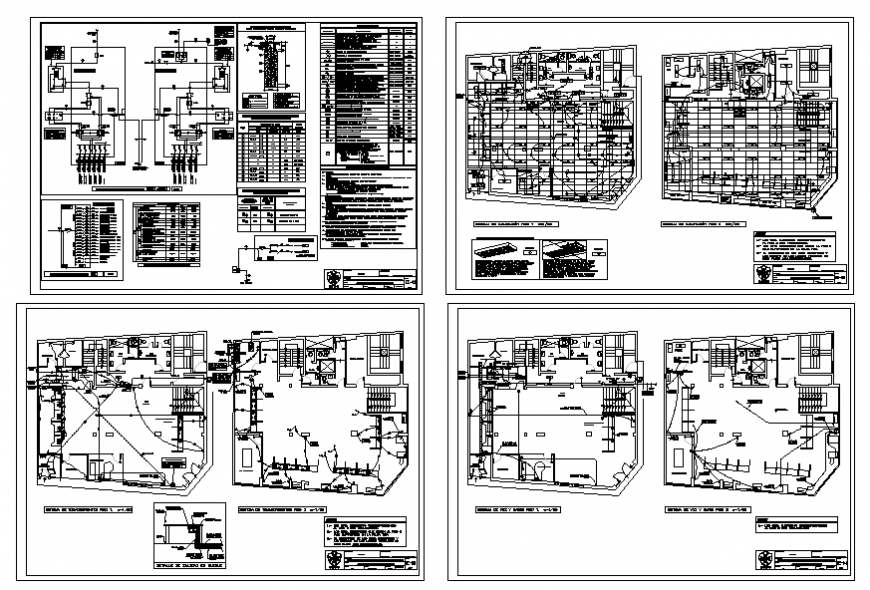
Two story villa layout plan, electrical layout plan and constructive structure details that includes a detailed view of main entry house door, drawing room, living room, family hall, kitchen, dining area, indoor staircases, laundry area, balcony, bedroom, master bedroom, toilets and bathroom, indoor doors, furniture details with lighting layout details, computation and schedule of loads, general notes and specifications, panel board details, riser diagram, convienence details with structure details, floor construction, beam construction, floor wise structure and constructive details with memory of materials, footings details, staircase construction and sectional details, steps details, dimensions, column view and much more of villa project.
Uploaded by:
Eiz
Luna

