First floor to terrace floor home plan layout file
Description
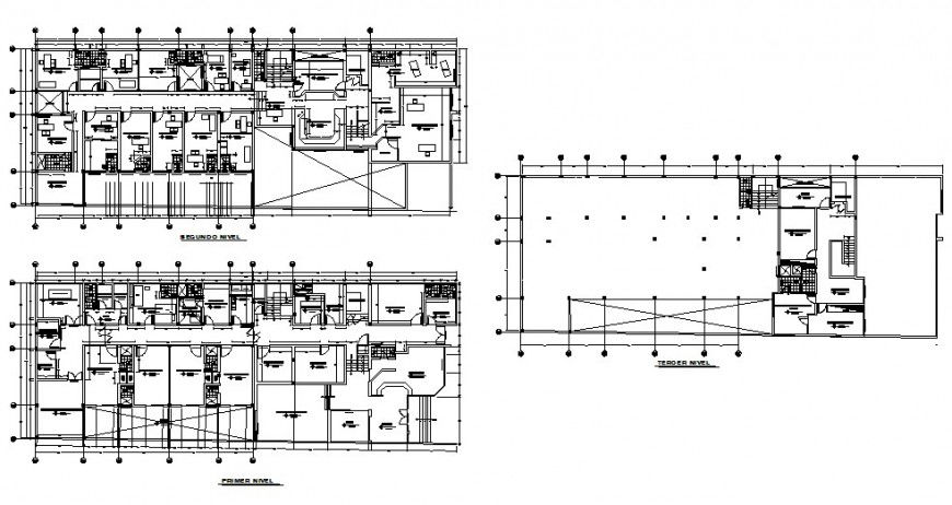
First floor to terrace floor home plan layout file, centre line plan detail, dimension detail, naming detail, brick wall detail flooring detail, furniture detail in door and window detail, stair detail, cut out detail, hatching detail, not to scale detail, toilet detail, etc.
Uploaded by:
Eiz
Luna

