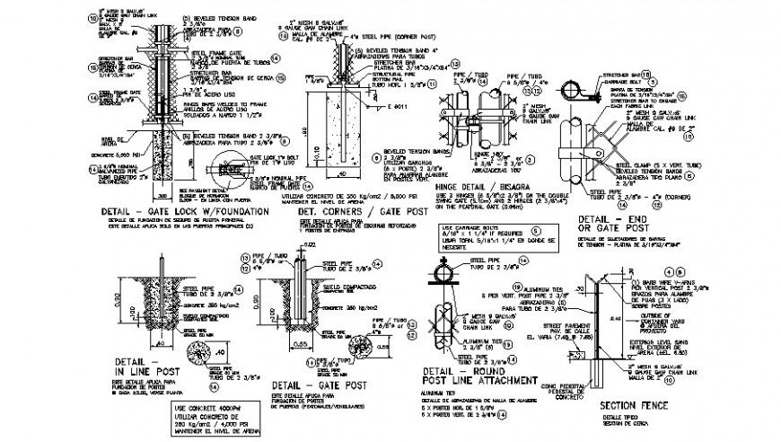
Detail gate lock and foundation section detail dwg file
Description
Detail gate lock and foundation section detail dwg file, specification detail, naming detail, hatching detail, reinforcement detail, bolt nut detail, gate post section detail, lock system detail, cross line detail, cross line detail, concrete mortar detail, etc.
Uploaded by:
Eiz
Luna

