Modern villa two level with terrace-elevation, section and floor plan details dwg file
Description
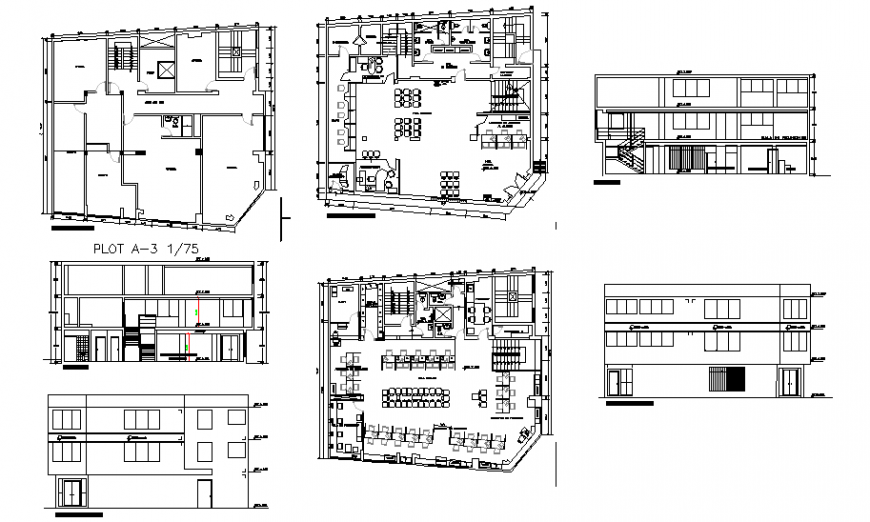
Modern villa two level with terrace-elevation, section and floor plan details that includes a detailed view of flooring view, doors and windows view, staircase view, balcony view, wall design, dimensions, roof or terrace view, car parking view with main entry house door, drawing room, living room, family hall, kitchen, dining area, indoor staircases, laundry area, balcony, bedroom, master bedroom, toilets and bathroom, indoor doors, furniture details and much more of villa project.
Uploaded by:
Eiz
Luna

