Villa ground floor, first floor and general framing plan cad drawing details dwg file
Description
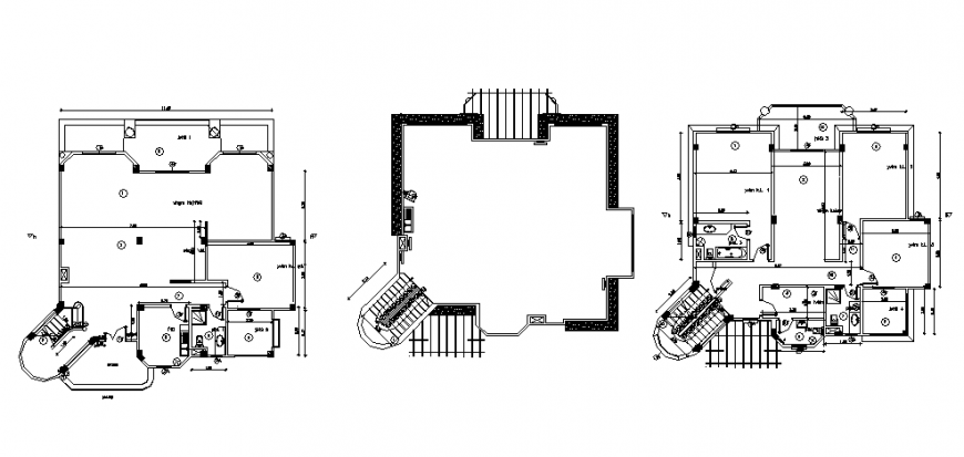
Villa ground floor, first floor and general framing plan cad drawing details that includes a detaield view of main entry house door, drawing room, living room, family hall, kitchen, dining area, indoor staircases, laundry area, balcony, bedroom, master bedroom, toilets and bathroom, indoor doors, furniture details and much more of villa project.
Uploaded by:
Eiz
Luna

