Working house planning detail dwg file
Description
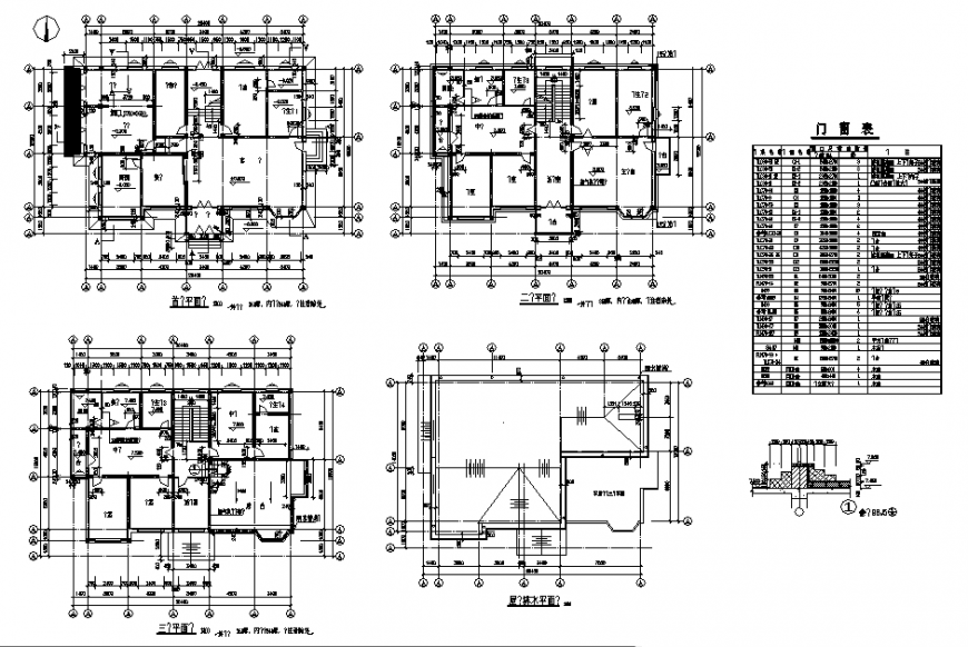
Working house planning detail dwg file, centre line plan detail, dimension detail, naming detail, hidden line detail, brick wall detail, table specification detail, flooring detail, projection detail, foundation section detail, concrete mortar detail, reinforcement detail, furniture detail in door and window detail, etc.
Uploaded by:
Eiz
Luna

