Changing Room Layout Plan CAD Drawing File for Store Interiors
Description
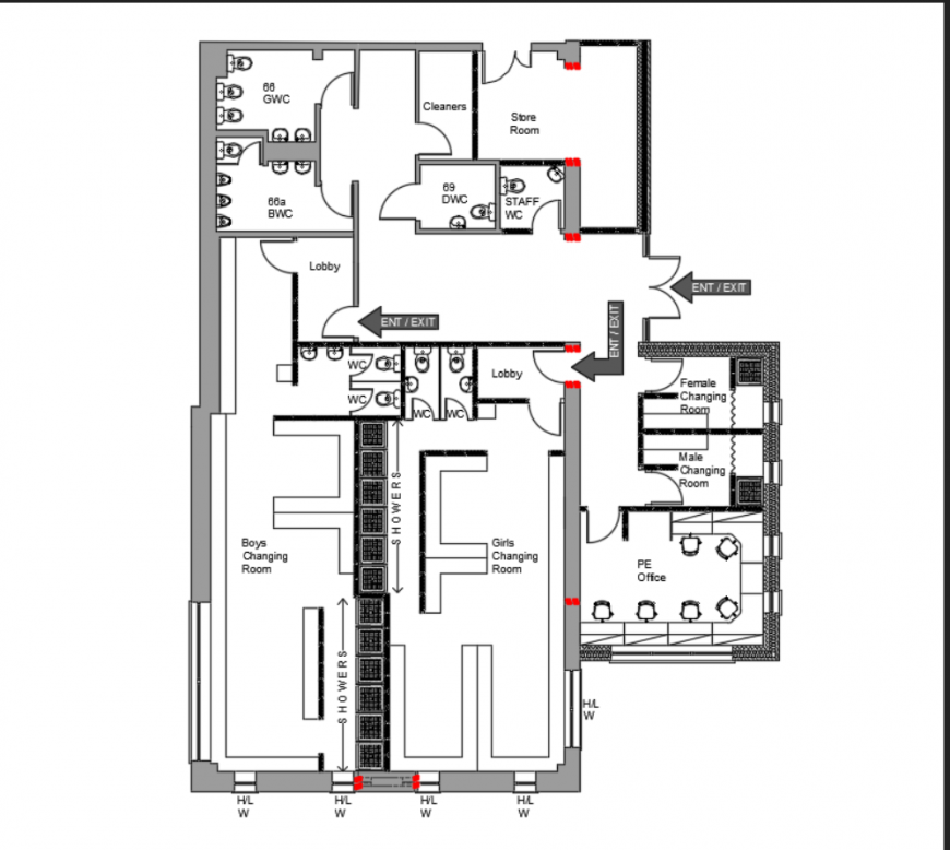
This changing room plan CAD drawing file detailed layout for store interiors, including partitions, seating, lockers, and fittings. The AutoCAD file helps designers and architects accurately plan store facilities, optimize space, and integrate functional elements seamlessly. This DWG file ensures precise measurement, alignment, and professional visualization of store changing rooms for commercial design projects. Ideal for efficient planning and execution.
File Type:
DWG
File Size:
231 KB
Category::
Interior Design
Sub Category::
Showroom & Shop Interior
type:
Gold
Uploaded by:
Eiz
Luna

